C2145

多巴胺艺术空间

艺术空间|上海
  • 场地详情
  • 服务设施
  • 注意事项
  • 场地地点
    上海浦东新区上海市浦东新区陈家沟路
  • 场地类型
    艺术空间
  • 场地面积
    0平米
  • 场景数量
    2
  • 空调
  • 暖气
  • WIFI
  • 推车
  • 电梯
  • 停车位
  • 餐厅
  • 休息室
  • 化妆间
  • VIP化妆间
  • 洗手间
  • VIP洗手间
  • 更衣间
  • 挂烫机
  • 衣架
  • 龙门架
  • 220V电力
  • 380V电力
  • 专业电箱
  • 打光通道
  • 可收音
  • 马道
  • 服装库
  • 道具库
  • 摄影器材
  • 灯光器材
  • 可进车
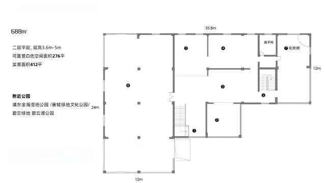
二层平层,层高3.6米-5米
可置景白色空间面积276平方
实际面积412平方
多巴胺艺术空间(15)
缩略显示
大图显示
  • 内景(14)
  • 平面图(1)
内景(14)
平面图(1)
因资料较大 请识别二维码
进入一起拍微信公众号
回复场地编号
C2145
获取场地资料网盘链接
山竹
多巴胺艺术空间
  • 电话

  • 微信

  • 收藏